Дизайнерский интерьер квартиры площадью 34 квадратных метров

Дизайнеры Антон Корнеев и Екатерина Блохина, представляющие студию Korneev Design Workshop, за два месяца полностью преобразили старую однокомнатную квартиру в современную студию площадью 35 квадратных метров на Ленинградском проспекте в Москве.
Дизайнеры знакомы с заказчиками, которые живут за городом, уже много лет и не раз создавали для них интерьеры. На этот раз нужно было оформить студию для временных визитов хозяйки. Главным пожеланием клиентов было одно — чтобы ремонт прошёл быстро.
Учитывая небольшой метраж и высоту потолков в 255 сантиметров, дизайнеры предложили использовать белый цвет как фон и обойтись минимальными работами.
В гостиной появилась ниша для полноценной кровати, кухня стала продолжением жилой зоны. А после присоединения лоджии квартира стала просторнее. Этот шаг потребовал серьёзных затрат и работ — утепления и изоляции, но результат того стоил. Теперь в маленькой студии есть панорамное окно почти на всю ширину стены.
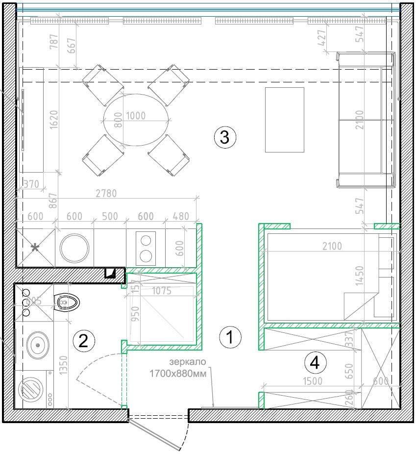
Отдельно стоящим шкафам дизайнеры предпочли небольшую гардеробную. В неё ведёт открытый проём из прихожей.
Старинное зеркало купили на блошином рынке. Рама сперва была золотой, чтобы не создавать визуальный шум, её перекрасили в белый.
Зелёный диван и жёлтый ковёр куплены в ИКЕА. А журнальный столик с живым краем — предмет авторского дизайна: «Заказчик работает в сфере кино, и столик изготовили у них на производстве», — поясняет Антон Корнеев.
«Мы с заказчиками часто разговариваем о поездках. Однажды они поделились впечатлениями от Лиссабона — и мы нашли изображение с местным трамваем, который мог бы им напоминать о путешествии», — рассказывает дизайнер.
Спальня отделена от остального пространства порталом, в изголовье кровати уложена паркетная доска из остатков материала, который архитекторы использовали на предыдущем объекте у тех же заказчиков.
Фасады самой бюджетной кухни из ИКЕА выкрасили чёрной краской, а типовой комод из сосны — жёлтой.
Фигурки-обереги авторы проекта привезли из Индонезии, с острова Сулавеси.
Единственная деталь, которая перекочевала из старого интерьера в новый — напольная плитка в санузле. Отделка стен выполнена из старого распиленного кирпича: его заказывали в Петербурге.
Фотографии: Ольга Шангина





















Источник
Комментариев 3
Посетители, находящиеся в группе Гости, не могут оставлять комментарии к данной публикации.