Дом от архитекторов для семьи с двумя детьми в Сан-Франциско

Работая над проектом частного дома Switchback, архитекторы Вивиан Ли и Роберт Эдмондс, представляющие Edmonds + Lee Architects, имели возможность круглосуточно обсуждать друг с другом идеальную арматуру и лучшие оконные рамы, а также получили ту особую свободу, которая приходит от осознания того, что накопленного опыта уже достаточно, чтобы построить дом своей мечты.
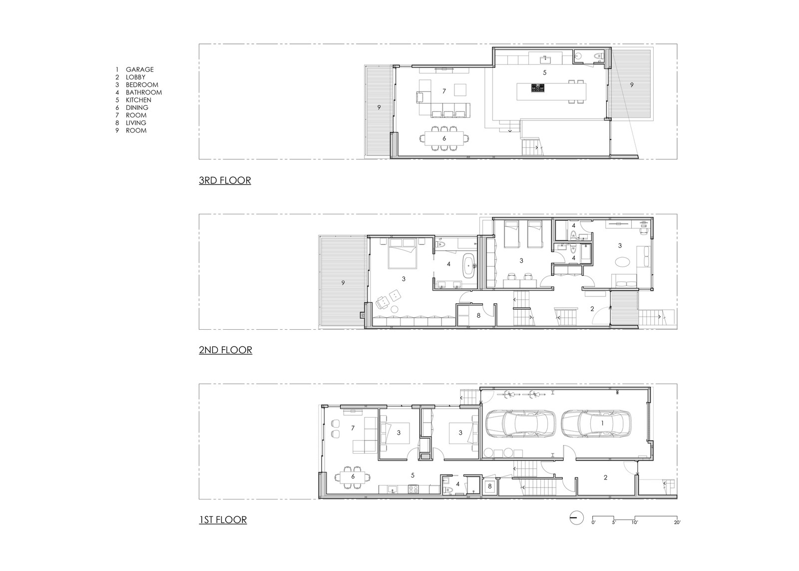
Пара с двумя детьми нуждалась в трёх спальнях и общей дневной зоне, необходимых для комфортного проживания. При этом в доме должно быть достаточно компактно, чтобы малолетние дети случайно не забрели в подвал или на чердак, но и довольно просторно, чтобы, когда вырастут, они могли бы жить независимо друг от друга и от своих родителей. В итоге творческого подхода к дизайну здание решено было разделить на два блока, гостиную устроить на верхнем этаже, а спальни на нижнем уровне, воплощая в реальность стиль лофт, к которому и стремились.
В то время как в городском социуме существует тенденция отгородиться от Сан-Франциско, защищая свои семьи от возможного агрессивного воздействия урбанистической среды, архитекторы, напротив, захотели создать апофеоз плотной компоновки помещений, но при этом пространство ощущается лёгким, воздушным, просторным и открытым.
Знакомство дизайнеров с общими архитектурными ограничениями расставило свои приоритеты: перегородки из простого гипсокартона, лестница из окрашенной стали, раковины из литого искусственного камня, а большая часть деталей из подручных материалов.
Главный секрет этого жилища в том, что оно построено людьми, которые действительно живут в рамках бюджета, которые заинтересованы в строительстве в пределах этого бюджета, которые испытывают финансовые и дизайнерские ограничения и принимают их к сведению, чтобы создать креативные и эстетически убедительные решения.






























Источник
Комментариев 1
Посетители, находящиеся в группе Гости, не могут оставлять комментарии к данной публикации.