Небоскреб на пятачке
Думаете это только у нас такая точечная застройка идет?
Посмотрите на фото и скажите: возможно ли, чтобы на этом месте появился 77-этажный небоскреб? При том, что никакие дома вокруг сносить нельзя, а для застройки можно использовать исключительно имеющийся свободный участок. И еще нельзя закрывать боковой фасад здания слева, поэтому строить можно только в глубине участка. Размер свободного пространства можно рассмотреть на гуглокарте. Ну что скажете? Реально?
Оказывается, что вполне реально. Уже разработан проект, получены все необходимые разрешения и совсем скоро на этом месте начнутся строительные работы. Здание будет четвертым по высоте небоскребом в Нью-Йорке - 77 этажей и 411 метров. И оно будет выше Эмпайр-стейт-билдинг (381 метр). При этом ширина здания будет всего 18, а длина 21 метр!
2. Проект называется "107 West 57th" или "Стейнвей-тауэр" и своим названием он обязан старому 15-этажному зданию, чей фасад закрывать нельзя. Стейнвей-билдинг был построен в 1925 году, является объектом архитектурного наследия и находится под охраной. Мало того, архитектурным наследием признаны и его интерьеры, поэтому ни снести здание, ни как-то изменить его облик уже невозможно.

3. Стейнвей-билдинг когда-то было главным офисом и торгово-выставочным центром компании Steinway & Sons, которая выпускала одни из лучших в мире пианино и рояли. В его главном зале - круглой ротонде выступли многие известные пианисты и музыканты. В 1928 году здесь играл Рахманинов.

4. Застройщику купившему Стейнвей-билдинг ($131,5 млн. за права на земельный участок + $46,3 млн. за само здание) и соседний пустующий участок ( еще $40 млн.) пришлось сильно напрячься, чтобы придумать, как на этом месте построить что-нибудь большое и высокое.

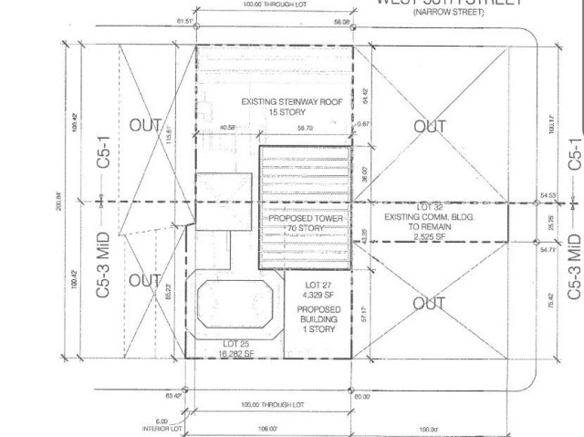
5. Квадрат в центре это силуэт будущего здания. Его размеры 18 х 23 х 411 метров.

6. Т.е. фактически это будет небоскреб стоящий в маленьком дворе. Там находится небольшая одноэтажная пристройка, которую вскоре снесут или уже снесли и как раз на ее месте начнут строительство. Доступное пространство от конца кирпичной кладки слева до стены с окнами, в которое упирается взгляд. И это будущий широкий фасад здания, тот, что 23 метр. Узкий (18 метров), чуть больше, чем расстояние от стены справа, до стены слева. Пространство под застройку меньше, чем садовый участок в 6 соток. И на этом пятачке будет стоять здание высотой больше 400 метров.
7. На фото здание по адресу 785 8th ave . Оно высотой всего 172 метра при примерно таких же харрактеристиках. Представляете, как в реальности будет выглядеть Стейнвей-тауэр.

8. Несколько картинок будущего небоскреба. Вид со стороны Центрального парка.

9. Макет здания, который сейчас выставляется в музее небоскребов (это повод туда сходить).
источник





Комментариев 2
Посетители, находящиеся в группе Гости, не могут оставлять комментарии к данной публикации.